Published:2011/6/21 0:28:00 Author:John | Keyword: electric suspension | From:SeekIC

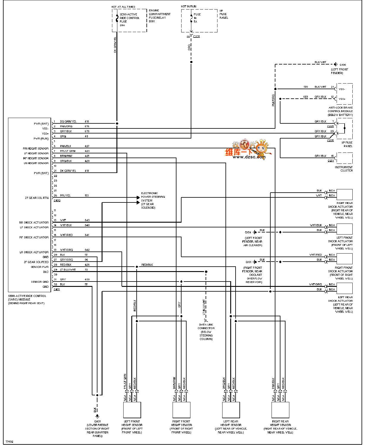
azda 96TAURUS electric suspension circuit is shown.
Reprinted Url Of This Article:
http://www.seekic.com/circuit_diagram/555_Circuit/azda_96TAURUS_electric_suspension_circuit.html
Print this Page | Comments | Reading(3)
Code: