Published:2011/7/15 23:53:00 Author:Christina | Keyword: 50W, DC, converter | From:SeekIC



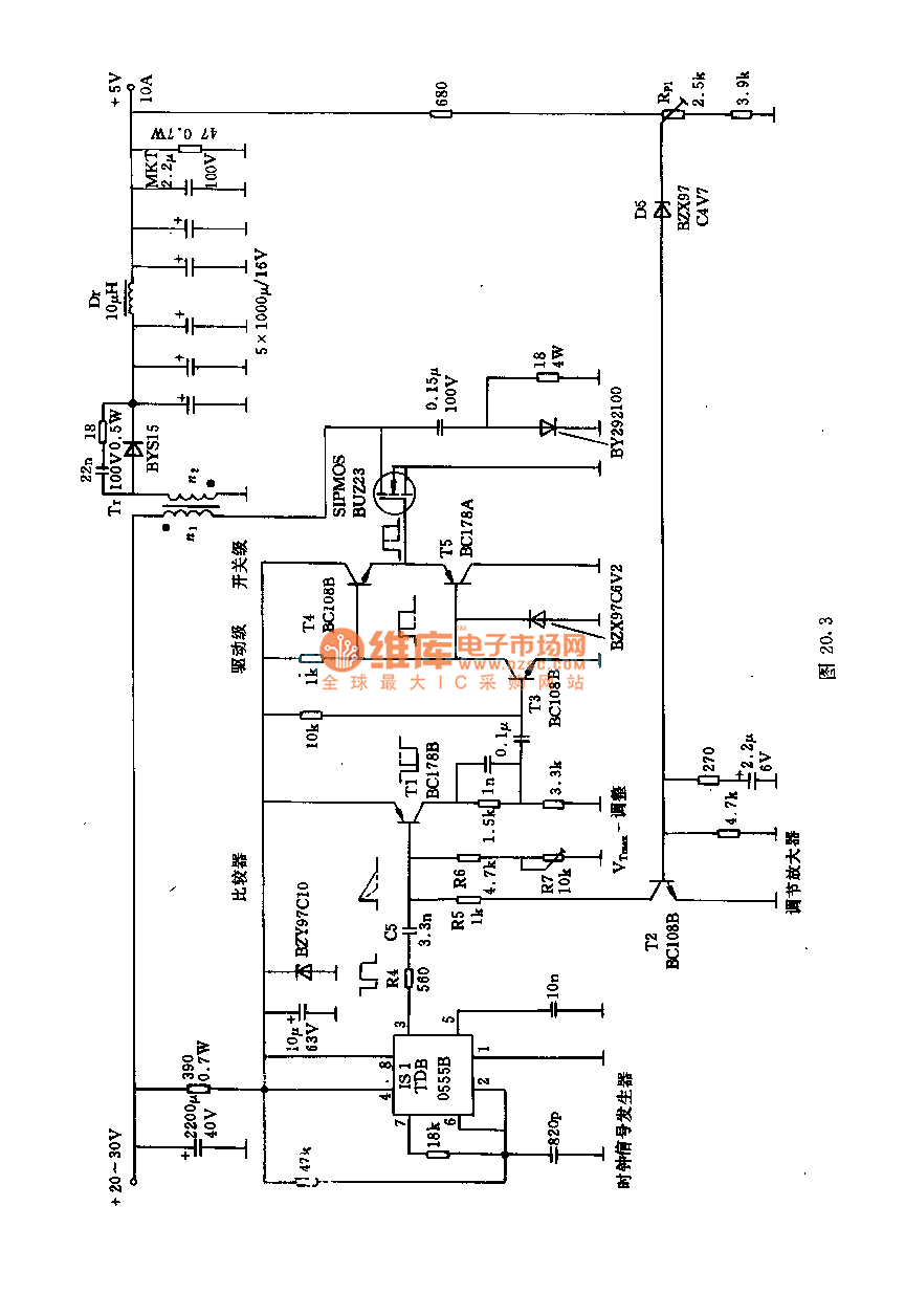
The control, adjustment, surveillance, and other functions are beared by the TDA4700, the output controls the push-pull stage, and the voltage is output by the transformer.
The main technical data:
Output voltage U1:20-28V(typical value:24V)Output voltage U2:0-5.25V(typical value:5V)Output current I2:0-10ALoad voltage adjustment rate:0.4%efficiency:72%Positive loss PVD:0.9WSwitch loss PVS=0.4WTotal loss PVD+PVS=1.3W.
Reprinted Url Of This Article:
http://www.seekic.com/circuit_diagram/A-D_D-A_Converter_Circuit/50W_DC_converter.html
Print this Page | Comments | Reading(3)
Code: