Published:2011/7/5 20:48:00 Author:Christina | Keyword: ChangFeng, LieBao, SUV, air conditioning system | From:SeekIC

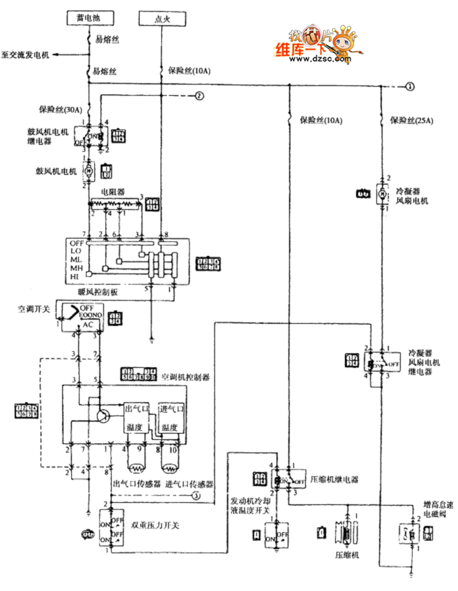
The ChangFeng LieBao SUV air conditioning system (single) circuit is as shown in the figure:
Reprinted Url Of This Article:
http://www.seekic.com/circuit_diagram/Automotive_Circuit/ChangFeng_LieBao_SUV_air_conditioning_system_single_circuit.html
Print this Page | Comments | Reading(3)
Code: