Published:2011/3/25 2:00:00 Author:Jessie | Keyword: elevator, power | From:SeekIC

Reprinted Url Of This Article:
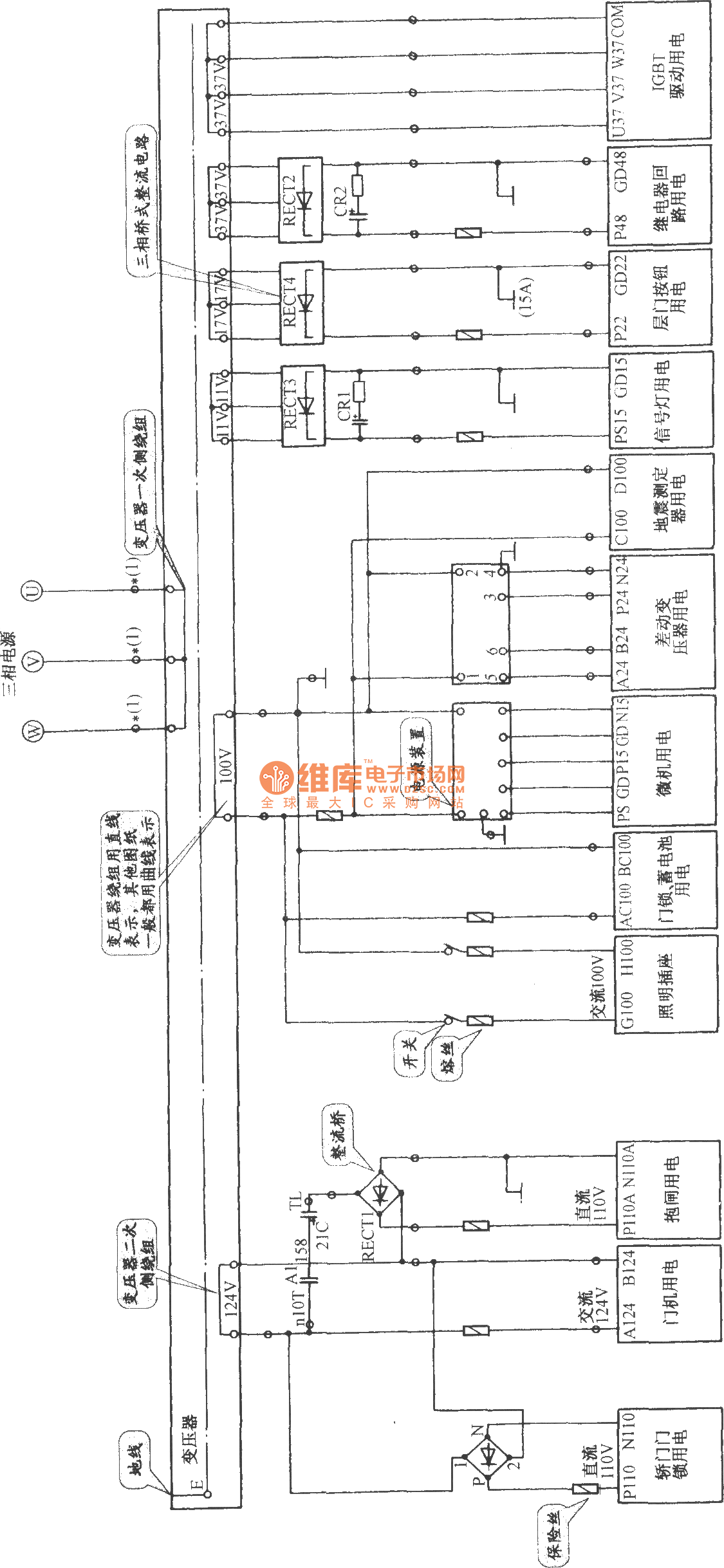
http://www.seekic.com/circuit_diagram/Control_Circuit/Hitachi_VFMG_elevator_control_power_circuit.html
Print this Page | Comments | Reading(3)
Code: