Published:2013/10/17 20:26:00 Author:lynne | Keyword: Inverted 555 Timer Circuit | From:SeekIC

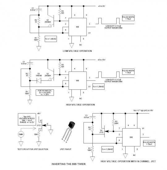
Whenever I use the 555 timer, it seems that the output polarity is invariably incorrect, and the way the 555 functions, it normally cannot generate a duty cycle of less than 50% — 90% yes, 10% NO! This inverted 555 circuit generates duty cycles of less than 50%. Everything works the same except for the polarity. Why not simply invert the output with a transistor? Will not that do the same? Legitimate question… Actually NO, because a transistor that inverts the output cannot provide the desirable totem pole source/sink output function of pin 3. And there is another reason that we will get in the future—this is a 555VCO circuit that requires the inverted timer.
Inverted 555 Timer Schematic
The schematic shows (3) circuits, because one circuit does not work well over the entire Vcc range.
The first simply uses a “normal” 2N3904 garden variety transistor, and this works well when Vcc < 9V. When Vcc > 9V, the base to emitter junction starts to zener and disrupts operation. Transistor base to emitter junction zeners a little above -6V.
The second circuit adds D1 to the emitter of Q1 in order to increase VEBO. With this mod, Vcc may be increased to the 18V limit. However, D1 may be eliminated if we use the special 2SC2878 switching transistor that has a VBEO rating of -25V. These devices are no longer in production, but are available on eBay—every serious experimenter should have a few in his component collection. The types now in production use the tiny SO-23 SMD package.
The third circuit uses a J112 N-Channel JFET for Q1. The JFET is a curious device that works well for the application provided we allow for the VGS(OFF) parameter. VGS must be less than Vcc /3. (e.g. if Vcc = 9V, VGS(OFF) must be less than 9V /3 or 3V for proper operation). Since the VGS(OFF) parameter is sloppy (-1 to -5V), the device must be selected—to the left is a simple test circuit—actually, most devices will work OK. The J112 should also be in every serious experimenter’s component collection.
Reprinted Url Of This Article:
http://www.seekic.com/circuit_diagram/Control_Circuit/Inverted_555_Timer_Circuit.html
Print this Page | Comments | Reading(3)
Code: